洗衣粉直排篩
作者富皓機械設備瀏覽次數:
洗衣粉直排篩
眾所周知,直排篩可以用在多個行業,大到化工,非礦,小到各種粉末,包括家喻戶曉的洗衣粉。直排篩體積小,篩分精細,我們生產各種型號的洗衣粉直排篩,在這里提醒下大家,咨詢直排篩的時候一定要提供較為詳細的產品信息,比如需要篩分的程度,目數等,洗衣粉直排篩,歡迎您的詢價 !
ZPS直排篩是我公司工程師為部分行業特殊設計的一種多用途新型篩分機,改變了原由的雙電機結構形式,采用單一臥式振動電機,物料的運行軌跡有多種調節形式,設備適應性顯著增加;物料直接排放,有大的處理量。SYM-1000型篩機,網目24目,在線篩分制造方便面用小麥粉,用于除雜、增加小麥粉比表面積,可達到350kg/150秒。 公司可根據用戶要求設計制造,如將進料口加高、出料口加裝蝶閥等。 洗衣粉直排篩主要用途: ZPS直排式振動篩多用于面粉、淀粉、洗衣粉、金屬粉、添加劑、化工、非礦等行業的顆粒、粉末的粗略篩分、精度篩分,處理量大、易與生產線結合。你可600mm至1800mm之間有更多的選擇。 ZPS系列直排篩主要特點:1.結構簡單、緊湊,維護方便,故障小。
2.全封閉結構,杜絕粉塵飛揚,噪音小,安靜環保。
3.大流量的出料口在底部,便于流水線作業的設備安裝。
4.上層出料口可以在360°內任意調整,方便安裝、使用。
5.處理量大,篩分精度高,可以有效的節約能源,起到事半功倍的效果。
6.新型網架結構,網的漲緊度高,使用壽命長,并且客戶自己可以快捷更換篩網。


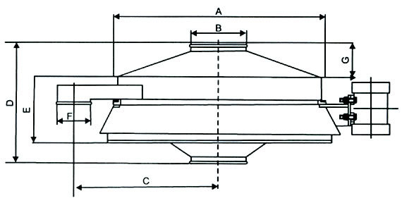
| 型號 | A | B | C | D | E | F | G |
| ZPS-600 | 600 | 150 | 380 | 560 | 325 | 120 | 80 |
| ZPS-800 | 800 | 200 | 540 | 600 | 350 | 125 | 90 |
| ZDS-1000 | 970 | 250 | 640 | 640 | 350 | 150 | 100 |
| ZPS-1200 | 1170 | 250 | 700 | 700 | 400 | 180 | 120 |
| ZPS-1500 | 1470 | 250 | 760 | 760 | 440 | 200 | 120 |
洗衣粉直排篩產品概述: